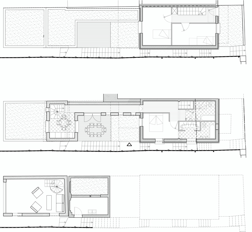
Restructuration et extension d'une maison d'habitation à Garches (92)

NOUVEAU PROJET
Architecte : Castanet
Mission : Base + OPC
BET Structure : MCR
BET Thermique : Watt&Cie
SHAB : 100 m²
Coût : 245 k€/HT
Maître d'ouvrage : Privé
Projet abandonné