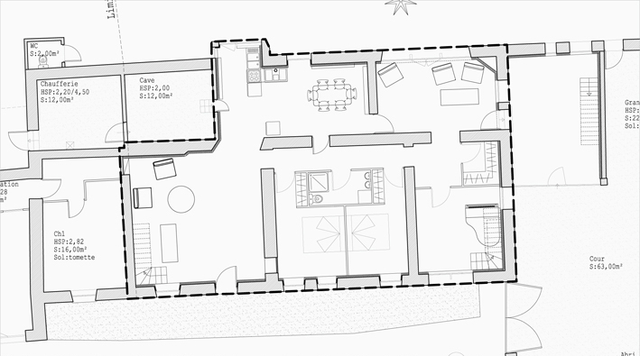
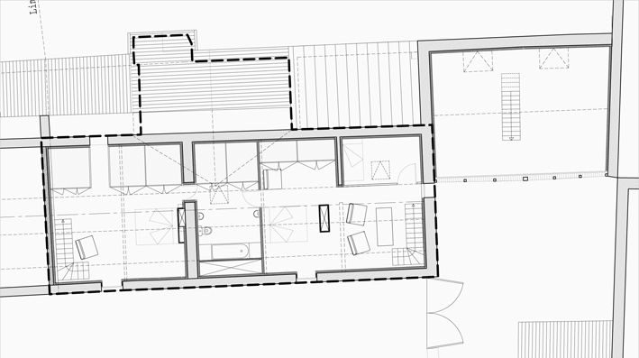
Rénovation d'une ancienne grange à Ousson (45) - En cours

Architecte : Castanet
Mission : APS
BET Structure :
BET Thermique :
SHAB : 220 m²
Coût : 160 k€/HT
Maître d'ouvrage : Privé