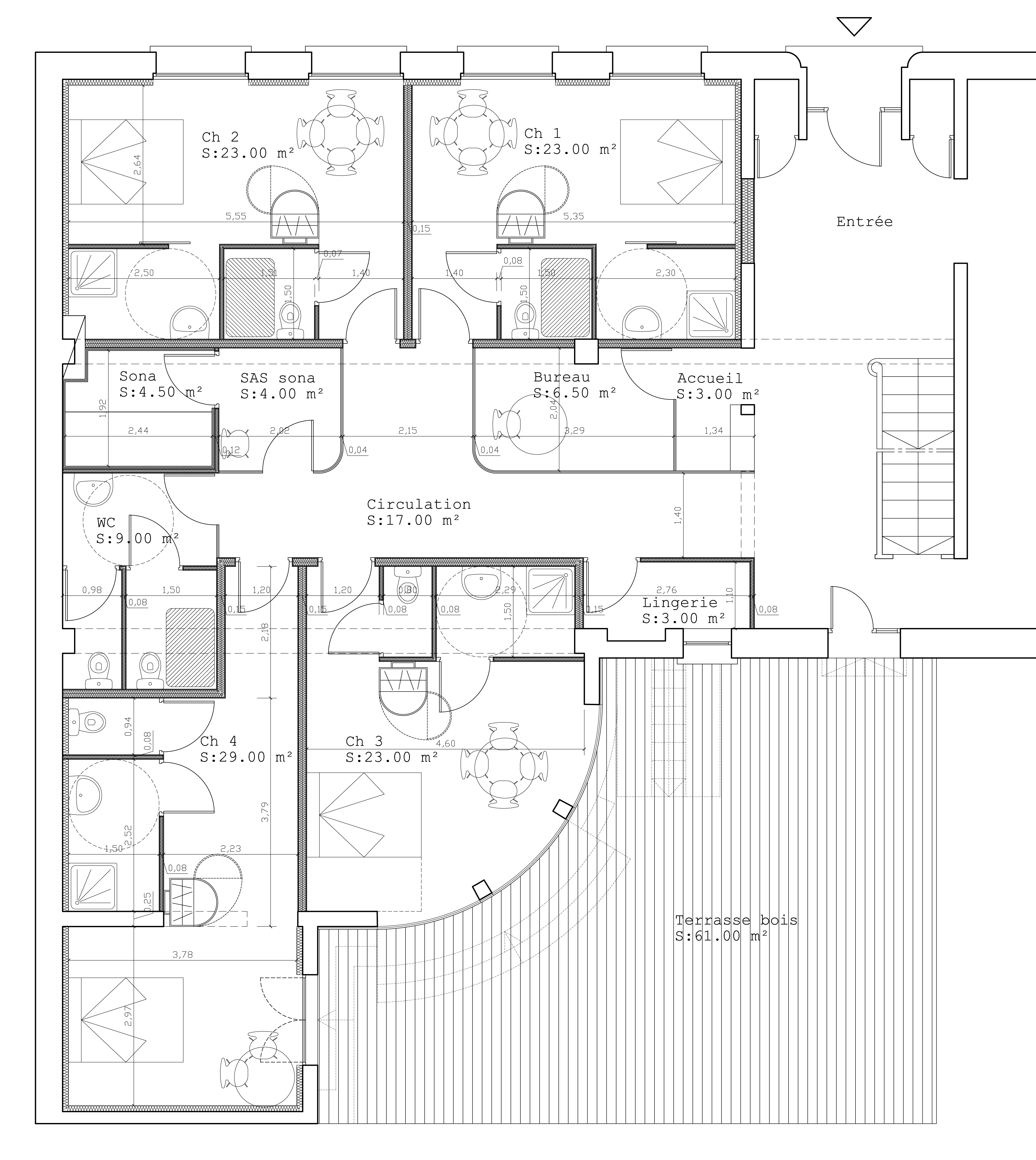
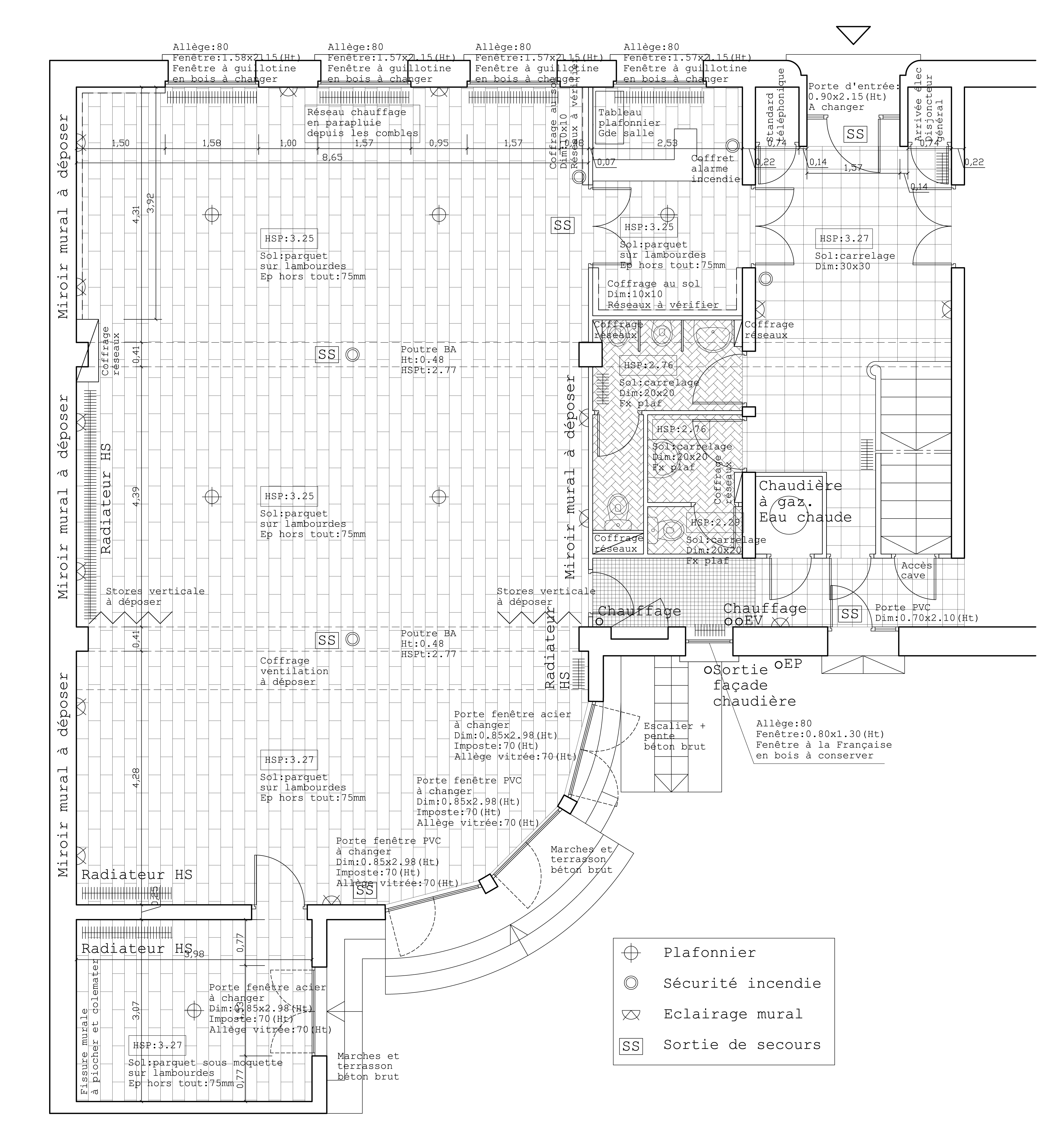
Rénovation de l'hôtel des Ducs à Alençon (61)

Architecte : Castanet
Mission : Base + OPC
BET Fluides : Corétude
SU : 215 m²
Coût :150 k€/HT
Livraison : 2012
Maître d'ouvrage : Hôtel des Ducs