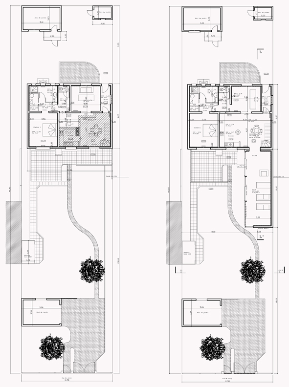
Extension d'une maison d'habitation à Quincy/Sénart (91)

Architecte : Castanet
BET Structure : BIIC
SU : 30 m²
Coût : 50 k€/HT
Livraison : 2009
Maître d'ouvrage : Privée
Caractéristique : Structure acier