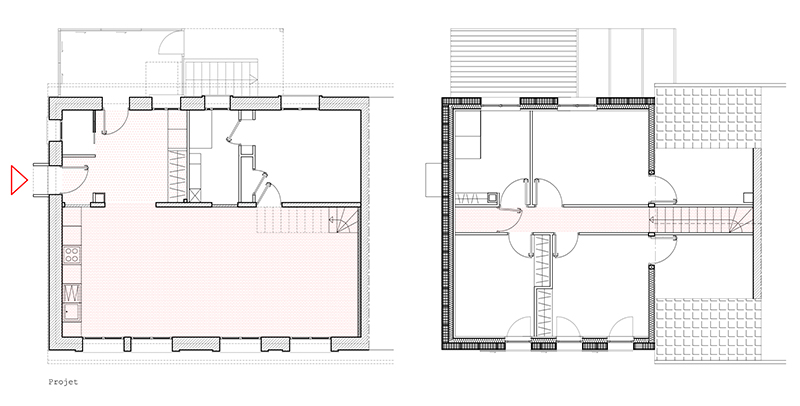
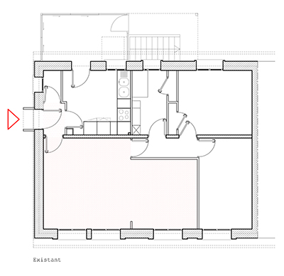
Rénovation et surélévation d'une maisons d'habitation à L'Haÿ les Roses (94)

Architecte : Castanet
BET Structure : MCR
BET Thermique : Watt
SdP : 112,00 m²
Coût : 230 k€/HT
Avancement : DCE
Maître d'ouvrage : Privée